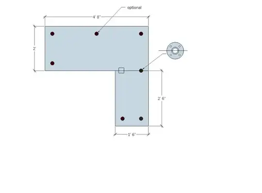
I am building an L shaped office desk from pipe, structural fittings. The top will be in two pieces cut from a 4x8 sheet of Baltic birch plywood. I'd like the desk, including the top, to be disassemble-able and, if at all possible, for there not to be a leg at the inside corner.
I'm looking for recommendations on joining the two top pieces given the above objectives (includes orientation of joint - see image)
Some thoughts I've had (NB: effectively total noob to this sort of thing)
- simply glue it (permanent)
- dowel, biscuits, spline (permanent, complex/hard for me)
- apron across the edge with the joint
- piece across joint on underside screwed into the top pieces (prob. can't disassemble too many times)
- dog bone fasteners
Thanks

