FAA has published Advisory Circular 150/5300-13A, Airport Design, which includes recommendations for parallel runway separation for US airports.
It summarises:
Quadruple simultaneous precision instrument approaches are currently
under study by the FAA. In the interim, the FAA, on a case-by-case
basis, will consider proposals utilizing separations down to a minimum
of 5,000 feet (1524 m). Quadruples may require special radar,
monitoring equipment, etc.
Simultaneous non-radar departures require a parallel runway centerline
separation of at least 3,500 feet (1067 m), and Simultaneous radar
departures at least 2,500 feet (762 m).
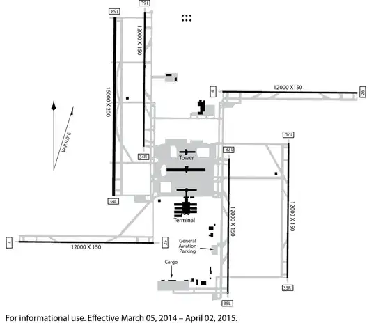
Back to the case, Denver airport is one of the busiest airports in terms of aircraft movements. It needs 6+ runways to support 550K aircraft movements every year. However, the more runways an airport has, the higher the chance air routes will interfere with each other. More separation between runways (and thus the terminals) can reduced distributions.
In fact the airport masterplan (PDF) shows that the operator is planning to build runways further separated from the terminals.
PS1: Denver is not the only case. Many mega airports have been built or are planned to be built with runways far from the terminal buildings, including Dallas/Fort Worth, Washington Dulles, Houston George Bush, as well as Dubai Al Maktoum Airport, Seoul Incheon airport and Shanghai Pudong airport.
PS2: Even though built in less populated area, Denver airport still have noise issues. More details can be seen here and there.